Používáme cookies k optimalizaci našich webových stránek a našich služeb. Další informace o cookies najdete zde.

Nastavení


PRODEJ, BYTY/2+KK, 31 M2, 51754 VAMBERK

PRODEJ, BYTY/2+KK, 31 M2, 51754 VAMBERK

2 290 000 Kč

Popis nemovitosti

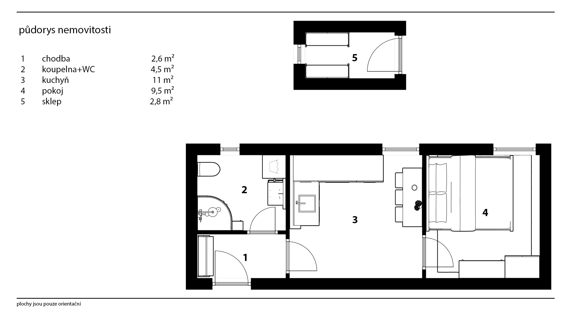
Nabízíme ke koupi útulný byt 2+kk o celkové ploše 31,73 m², který se nachází ve 2. nadzemním podlaží cihlového domu postaveného v roce 2019. Z celkové plochy tvoří podlahová plocha bytu 28,93 m² a sklep 2,8 m².

Byt nabízí promyšlené dispoziční řešení, díky němuž je každý metr prakticky využitý a prostor působí vzdušně a příjemně. Nízké měsíční náklady z něj dělají ideální volbu nejen pro vlastní bydlení, ale také investiční příležitost s potenciálem stabilního pronájmu.

Součástí bytu je sklepní kóje, která poskytuje dostatek úložného prostoru, a především vlastní parkovací místo na uzavřeném parkovišti se závorou, které zajišťuje komfortní a bezpečné parkování.

Bytový dům se nachází v těsné blízkosti centra města, kde je veškerá občanská vybavenost – obchody, služby, kavárny, sportoviště.

Tento byt je ideální volbou pro ty, kteří hledají úsporné a bezstarostné bydlení, stejně tak i pro investory hledající stabilní zhodnocení.

Uvedené výměry jsou orientační.
V případě více zájemců bude nemovitost prodána nejlepší nabídce a majitel si vyhrazuje právo vybrat kupujícího na základě jim zvolených kritérií. Veškeré zveřejněné údaje obsažené v tomto inzerátu mají pouze informativní charakter a nejsou nabídkou ve smyslu § 1731 nebo § 1732 občanského zákoníku, ani se nejedná o veřejný příslib dle § 1733 občanského zákoníku.

 

Rostislav Kchop

Pracuji jako realitní a investiční specialista a pomáhám lidem dělat rozhodnutí, která mají dlouhodobou hodnotu. Zaměřuji se především na Rychnovsko, Pardubicko a Královéhradecko, kde dlouhodobě působím a dokonale znám místní trh. Díky tomu dokážu klientům nabídnout nejen odborné poradenství, ale také přesný přehled o aktuální situaci v jednotlivých lokalitách.

V realitách i financích se pohybuji řadu let a díky zkušenostem z různých oblastí obchodu umím klientům nabídnout jistotu, strategické myšlení a férový přístup. Zakládám si na tom, aby měl každý klient všechny informace srozumitelně na jednom místě a cítil se v celém procesu bezpečně.

Zakládám si na férovém jednání, otevřené komunikaci a individuálním přístupu. Každý klient je jiný — proto vždy přizpůsobuji postup tak, aby celý proces byl co nejpříjemnější, bezpečný a maximálně efektivní.

Každý člen mého týmu přináší do spolupráce něco jedinečného. Společně zajišťujeme kompletní servis na vysoké úrovni, ať už jde o prodej, pronájem, investici či další finanční služby.

Věřím, že úspěch je výsledkem poctivé práce, lidského přístupu a silného týmu. A přesně to nabízím i vám.


Rostislav Kchop

Kontaktní formulář

Stáhnout PDF