Používáme cookies k optimalizaci našich webových stránek a našich služeb. Další informace o cookies najdete zde.

Nastavení


PRODEJ, DOMY/RODINNÝ, 145 M2, 51793 DOBRÉ

PRODEJ, DOMY/RODINNÝ, 145 M2, 51793 DOBRÉ

5 990 000 Kč

Popis nemovitosti

Hledáte dům, který nabídne dostatek prostoru pro rodinu, soukromí i praktické zázemí? Tento prostorný rodinný dům je ideální volbou pro dvougenerační bydlení nebo početnější rodinu, která ocení variabilní dispozici a velkorysé prostory.

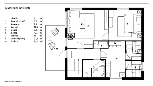
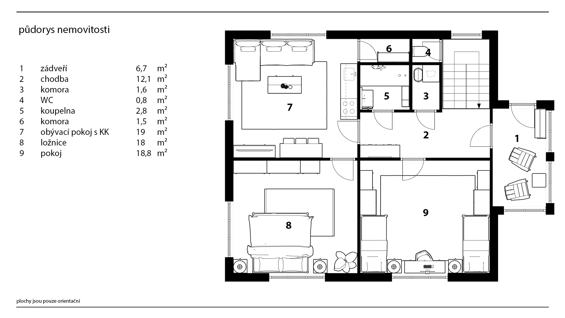
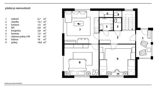
Dům disponuje dvěma nadzemními podlažími, přičemž každé z nich může sloužit jako samostatná obytná jednotka. Nemovitost tak nabízí široké možnosti využití – například pro vícegenerační bydlení, pohodlné rodinné zázemí nebo kombinaci bydlení a podnikání.

Před 7 lety prošel dům částečnou revitalizací, díky které nabízí příjemné a funkční bydlení. Noví majitelé si zároveň mohou dům dále upravit podle vlastních představ.

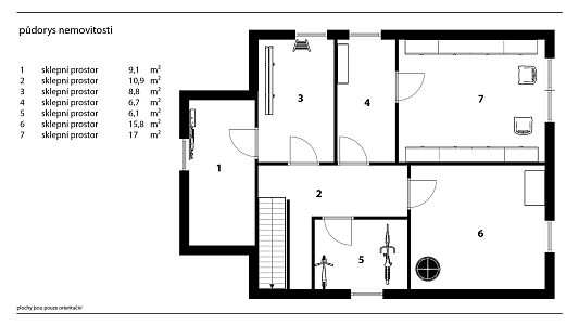
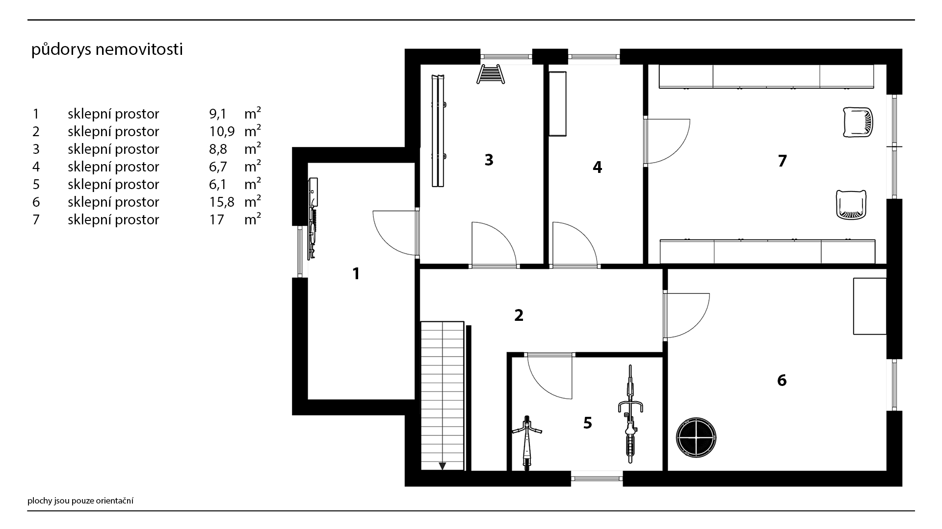
Velkou výhodou je kompletní podsklepení domu s přístupem přímo z interiéru, které poskytuje dostatek prostoru pro technické zázemí, skladování nebo hobby aktivity.

Součástí nemovitosti jsou také dvě garáže s přilehlou dílnou, která nabízí praktické zázemí pro práci nebo uložení nářadí a zahradní techniky. Součástí je vnitřní posezení s krbem a udírnou
K domu náleží prostorná zahrada se skleníkem, která poskytuje dostatek místa pro odpočinek, rodinné posezení, dětské hry i zahradničení.

Nemovitost se nachází v těsné blízkosti centra obce, což nabízí ideální kombinaci příjemného bydlení a dobré dostupnosti občanské vybavenosti (v obci je mateřská škola, základní škola, pošta, obchod s potravinami, praktický lékař).

Součástí fotogalerie jsou kromě aktuálních fotografií také vizualizace, které znázorňují možnou podobu budoucích úprav. Uvedené výměry jsou orientační.
V případě více zájemců bude nemovitost prodána nejlepší nabídce a majitel si vyhrazuje právo vybrat kupujícího na základě jim zvolených kritérií. Veškeré zveřejněné údaje obsažené v tomto inzerátu mají pouze informativní charakter a nejsou nabídkou ve smyslu § 1731 nebo § 1732 občanského zákoníku, ani se nejedná o veřejný příslib dle § 1733 občanského zákoníku.

Videoprohlídka

Rostislav Kchop

Pracuji jako realitní a investiční specialista a pomáhám lidem dělat rozhodnutí, která mají dlouhodobou hodnotu. Zaměřuji se především na Rychnovsko, Pardubicko a Královéhradecko, kde dlouhodobě působím a dokonale znám místní trh. Díky tomu dokážu klientům nabídnout nejen odborné poradenství, ale také přesný přehled o aktuální situaci v jednotlivých lokalitách.

V realitách i financích se pohybuji řadu let a díky zkušenostem z různých oblastí obchodu umím klientům nabídnout jistotu, strategické myšlení a férový přístup. Zakládám si na tom, aby měl každý klient všechny informace srozumitelně na jednom místě a cítil se v celém procesu bezpečně.

Zakládám si na férovém jednání, otevřené komunikaci a individuálním přístupu. Každý klient je jiný — proto vždy přizpůsobuji postup tak, aby celý proces byl co nejpříjemnější, bezpečný a maximálně efektivní.

Každý člen mého týmu přináší do spolupráce něco jedinečného. Společně zajišťujeme kompletní servis na vysoké úrovni, ať už jde o prodej, pronájem, investici či další finanční služby.

Věřím, že úspěch je výsledkem poctivé práce, lidského přístupu a silného týmu. A přesně to nabízím i vám.


Rostislav Kchop

Kontaktní formulář

Stáhnout PDF