Používáme cookies k optimalizaci našich webových stránek a našich služeb. Další informace o cookies najdete zde.

Nastavení


PRODEJ, DOMY/RODINNÝ, 194 M2, KRUCEMBURK

PRODEJ, DOMY/RODINNÝ, 194 M2, KRUCEMBURK

1 990 000 Kč

Popis nemovitosti

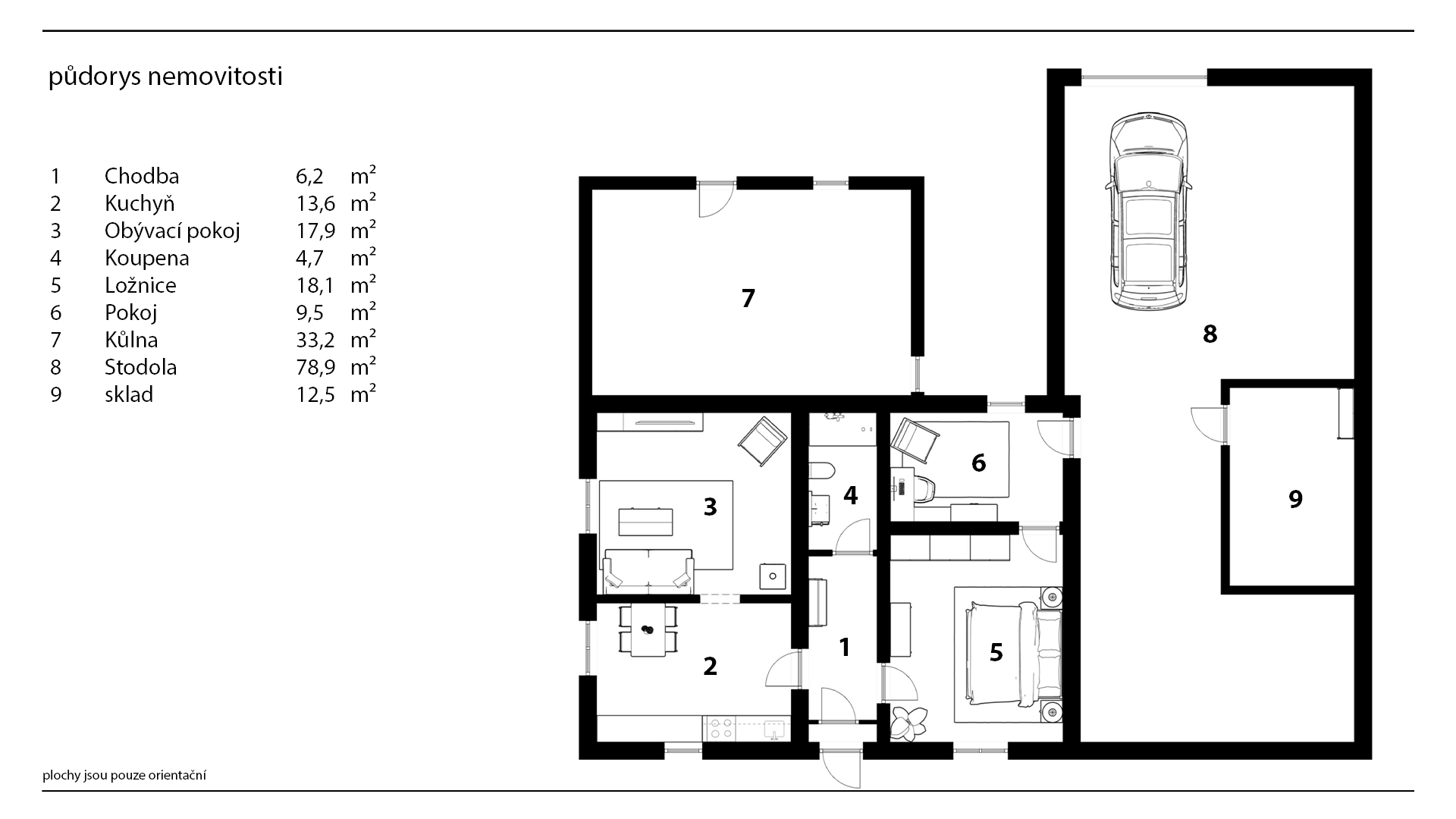
Nabízíme k prodeji rodinný dům o dispozici 2+1 v klidné části obce Krucemburk na Vysočině. Celková plocha objektu činí 194 m2, z toho rodinný dům má 70 m2 a výměru 124 m2 zahrnuje stodola, kůlna a sklad. Nemovitost je určena k rozsáhlé rekonstrukci, která již byla započata, avšak nebyla dokončena. Díky tomu má nový majitel možnost dokončit práce dle svých představ a vytvořit si bydlení, které bude přesně odpovídat jeho potřebám a stylu.

Na dům navazuje prostorná stodola, která rozšiřuje možnosti využití objektu – nabízí prostor pro skladování, vybudování dílny, garáže nebo případné rozšíření obytné části. Velkou výhodou je nová plechová střecha, která zajišťuje dlouhou životnost a nízké náklady na údržbu. Vytápění domu je řešeno elektrokotlem.
Po dokončení rekonstrukce může dům sloužit jak k trvalému bydlení, tak i k rekreačním účelům, což ocení zejména ti, kteří hledají klidné prostředí v krásné přírodě.

Obec Krucemburk disponuje dobrou občanskou vybaveností – najdete zde mateřskou i základní školu, lékárnu, poštu, supermarket, menší obchody, restaurace i sportovní areál. Okolí je proslulé svou malebnou krajinou s lesy, rybníky a množstvím turistických a cyklistických tras, které přímo vybízejí k odpočinku a aktivnímu trávení volného času.
Tato nemovitost je ideální pro ty, kteří hledají dům s velkým potenciálem, možností přestavby na míru a klidným zázemím s výbornou dostupností občanské vybavenosti.

Rostislav Kchop

Pracuji jako realitní a investiční specialista a pomáhám lidem dělat rozhodnutí, která mají dlouhodobou hodnotu. Zaměřuji se především na Rychnovsko, Pardubicko a Královéhradecko, kde dlouhodobě působím a dokonale znám místní trh. Díky tomu dokážu klientům nabídnout nejen odborné poradenství, ale také přesný přehled o aktuální situaci v jednotlivých lokalitách.

V realitách i financích se pohybuji řadu let a díky zkušenostem z různých oblastí obchodu umím klientům nabídnout jistotu, strategické myšlení a férový přístup. Zakládám si na tom, aby měl každý klient všechny informace srozumitelně na jednom místě a cítil se v celém procesu bezpečně.

Zakládám si na férovém jednání, otevřené komunikaci a individuálním přístupu. Každý klient je jiný — proto vždy přizpůsobuji postup tak, aby celý proces byl co nejpříjemnější, bezpečný a maximálně efektivní.

Každý člen mého týmu přináší do spolupráce něco jedinečného. Společně zajišťujeme kompletní servis na vysoké úrovni, ať už jde o prodej, pronájem, investici či další finanční služby.

Věřím, že úspěch je výsledkem poctivé práce, lidského přístupu a silného týmu. A přesně to nabízím i vám.


Rostislav Kchop

Kontaktní formulář

Stáhnout PDF