Používáme cookies k optimalizaci našich webových stránek a našich služeb. Další informace o cookies najdete zde.

Nastavení


PRODEJ, DOMY/RODINNÝ, 51721 TÝNIŠTĚ NAD ORLICÍ

PRODEJ, DOMY/RODINNÝ, 51721 TÝNIŠTĚ NAD ORLICÍ

8 499 000 Kč

Popis nemovitosti

Nabízíme k prodeji víceúčelový rodinný dům, který spojuje možnost bydlení, podnikání i investice.

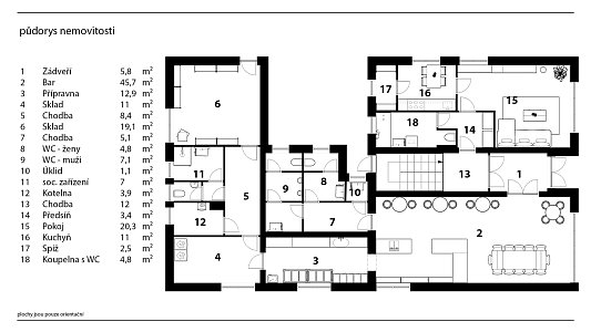
V přízemí domu se nachází plně funkční hospoda s kuchyní a zázemím, na kterou přímo navazuje venkovní posezení, ideální pro letní provoz. Součástí přízemí je také bytová jednotka 1+1, vhodná k bydlení či pronájmu.

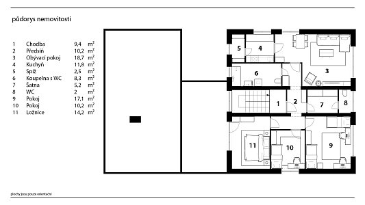
V 1. patře je situován prostorný byt 4+1 s terasou, který poskytuje dostatek soukromí i komfortu pro rodinné bydlení.

V podkroví se nachází byt 1+kk a další dva samostatné pokoje, což otevírá další možnosti využití.

Dům je částečně podsklepen a nabízí tak další úložné prostory. Na pozemku se nachází také venkovní přístavek, který lze využít jako dílnu nebo sklad zahradního náčiní a prostorná zahrada vhodná k relaxaci i dalšímu rozvoji.

Nemovitost je ideální jako kombinace podnikání a bydlení nebo jako investiční příležitost s možností přestavby na více bytových jednotek.

Pokud hledáte nemovitost s variabilním využitím a budoucím potenciálem, tato nabídka stojí za pozornost.

Uvedené výměry jsou orientační.
V případě více zájemců bude nemovitost prodána nejlepší nabídce a majitel si vyhrazuje právo vybrat kupujícího na základě jim zvolených kritérií. Veškeré zveřejněné údaje obsažené v tomto inzerátu mají pouze informativní charakter a nejsou nabídkou ve smyslu § 1731 nebo § 1732 občanského zákoníku, ani se nejedná o veřejný příslib dle § 1733 občanského zákoníku.

Videoprohlídka

Rostislav Kchop

Pracuji jako realitní a investiční specialista a pomáhám lidem dělat rozhodnutí, která mají dlouhodobou hodnotu. Zaměřuji se především na Rychnovsko, Pardubicko a Královéhradecko, kde dlouhodobě působím a dokonale znám místní trh. Díky tomu dokážu klientům nabídnout nejen odborné poradenství, ale také přesný přehled o aktuální situaci v jednotlivých lokalitách.

V realitách i financích se pohybuji řadu let a díky zkušenostem z různých oblastí obchodu umím klientům nabídnout jistotu, strategické myšlení a férový přístup. Zakládám si na tom, aby měl každý klient všechny informace srozumitelně na jednom místě a cítil se v celém procesu bezpečně.

Zakládám si na férovém jednání, otevřené komunikaci a individuálním přístupu. Každý klient je jiný — proto vždy přizpůsobuji postup tak, aby celý proces byl co nejpříjemnější, bezpečný a maximálně efektivní.

Každý člen mého týmu přináší do spolupráce něco jedinečného. Společně zajišťujeme kompletní servis na vysoké úrovni, ať už jde o prodej, pronájem, investici či další finanční služby.

Věřím, že úspěch je výsledkem poctivé práce, lidského přístupu a silného týmu. A přesně to nabízím i vám.


Rostislav Kchop

Kontaktní formulář

Stáhnout PDF