Používáme cookies k optimalizaci našich webových stránek a našich služeb. Další informace o cookies najdete zde.

Nastavení


PRODEJ, DOMY/RODINNÝ, 51771 ČESKÉ MEZIŘÍČÍ

PRODEJ, DOMY/RODINNÝ, 51771 ČESKÉ MEZIŘÍČÍ

7 490 000 Kč

Popis nemovitosti

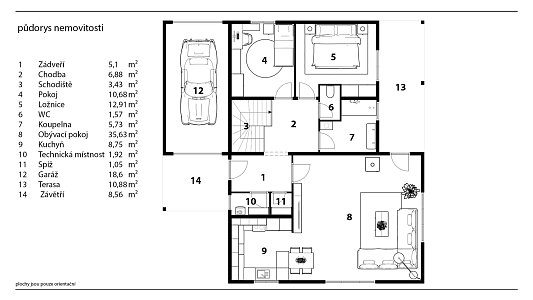
Nabízíme k prodeji rodinný dům o dispozici 4+kk v obci České Meziříčí, situovaný v klidné lokalitě vhodné pro rodinné bydlení.

Jedná se o dřevostavbu se dvěma nadzemními podlažími, která nabízí prakticky řešený prostor a dostatek místa pro každodenní život. Dominantou domu je obývací pokoj s kuchyňským koutem a přímým vstupem na terasu orientovanou na jih, což zajišťuje dostatek světla po celý den. V přízemí domu se dále nachází 2 pokoje, koupelna, samostatné wc, šatna a technická místnost. V patře je jeden velký pokoj, který lze dispozičně upravit a šatna.

Součástí nemovitosti je garáž pro jedno auto a udržovaná zahrada se zahradním domkem, který poskytuje další úložný prostor.

Ve fotogalerii jsou k dispozici také vizualizace, které přibližují možnosti budoucího uspořádání a využití interiéru.

Uvedené výměry jsou orientační.
V případě více zájemců bude nemovitost prodána nejlepší nabídce a majitel si vyhrazuje právo vybrat kupujícího na základě jim zvolených kritérií. Veškeré zveřejněné údaje obsažené v tomto inzerátu mají pouze informativní charakter a nejsou nabídkou ve smyslu § 1731 nebo § 1732 občanského zákoníku, ani se nejedná o veřejný příslib dle § 1733 občanského zákoníku.

Rostislav Kchop

Pracuji jako realitní a investiční specialista a pomáhám lidem dělat rozhodnutí, která mají dlouhodobou hodnotu. Zaměřuji se především na Rychnovsko, Pardubicko a Královéhradecko, kde dlouhodobě působím a dokonale znám místní trh. Díky tomu dokážu klientům nabídnout nejen odborné poradenství, ale také přesný přehled o aktuální situaci v jednotlivých lokalitách.

V realitách i financích se pohybuji řadu let a díky zkušenostem z různých oblastí obchodu umím klientům nabídnout jistotu, strategické myšlení a férový přístup. Zakládám si na tom, aby měl každý klient všechny informace srozumitelně na jednom místě a cítil se v celém procesu bezpečně.

Zakládám si na férovém jednání, otevřené komunikaci a individuálním přístupu. Každý klient je jiný — proto vždy přizpůsobuji postup tak, aby celý proces byl co nejpříjemnější, bezpečný a maximálně efektivní.

Každý člen mého týmu přináší do spolupráce něco jedinečného. Společně zajišťujeme kompletní servis na vysoké úrovni, ať už jde o prodej, pronájem, investici či další finanční služby.

Věřím, že úspěch je výsledkem poctivé práce, lidského přístupu a silného týmu. A přesně to nabízím i vám.


Rostislav Kchop

Kontaktní formulář

Stáhnout PDF